Warning: session_start() [function.session-start]: Cannot send session cookie - headers already sent by (output started at /home/storage/3/9c/34/tetraarq/public_html/projetos_abrir.php:42) in /home/storage/3/9c/34/tetraarq/public_html/menu.php on line 4

Warning: session_start() [function.session-start]: Cannot send session cache limiter - headers already sent (output started at /home/storage/3/9c/34/tetraarq/public_html/projetos_abrir.php:42) in /home/storage/3/9c/34/tetraarq/public_html/menu.php on line 4
Descrição


Esse Anteprojeto de Arquitetura foi elaborado pelo Consórcio Tetra Projetos e Almeida & Fleury Consultoria Econômica para o Edital de Chamamento Público nº 02/ 2017, promovido pela Secretaria Municipal de Desestatização e Parcerias (SMDP).
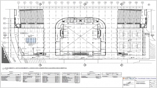
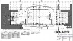
O projeto foi desenvolvido sem perder de vista o fato de que a modernização do Estádio do Pacaembu teria de prever as mudanças necessárias para qualificar este equipamento, melhorando sua funcionalidade e segurança, não implicando em sua descaracterização. Seguiu 4 principais linhas de intervenção: reforma e ampliação dos sanitários públicos e vestiários, modernização do setor da tribuna de honra e das cabines de transmissão, adequação das arquibancadas às normas de rota de fuga e acessibilidade e reforma e ampliação dos quiosques. Além disso, foram propostas soluções com o objetivo de aumentar as receitas do complexo com o melhor aproveitamento do espaço do campo com a substituição para gramado sintético para uso constante do público e construção de edifício multiuso em substituição ao “Tobogã”.
Ficha Técnica


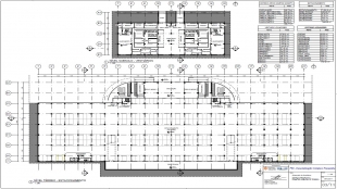
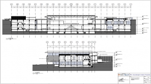
MODERNIZAÇÃO PARA O ESTÁDIO DO PACAEMBU

Local: São Paulo - SP

Data do Projeto: 2017

Área Construída: 75.598m²

Fase do Projeto: Estudos e Anteprojeto

Cliente: Secretaria Municipal de Desestatização e Parcerias

MODERNIZAÇÃO PARA O ESTÁDIO DO PACAEMBU