Warning: session_start() [function.session-start]: Cannot send session cookie - headers already sent by (output started at /home/storage/3/9c/34/tetraarq/public_html/projetos_abrir.php:42) in /home/storage/3/9c/34/tetraarq/public_html/menu.php on line 4

Warning: session_start() [function.session-start]: Cannot send session cache limiter - headers already sent (output started at /home/storage/3/9c/34/tetraarq/public_html/projetos_abrir.php:42) in /home/storage/3/9c/34/tetraarq/public_html/menu.php on line 4
Descrição


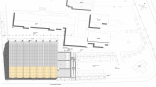
Desenvolvimento de projeto básico e executivo de um ginásio da APAE de Valinhos, São Paulo. O trabalho foi uma doação da Tetra para a instituição.
O espaço foi desenvolvido para as crianças atendidas pela instituição e para os moradores da região, que poderiam aluga-lo. A configuração do ginásio possibilita o seu uso como auditório para apresentação e eventos, além do uso poliesportivo através de quadras de dimensões oficiais para a prática de basquete, vôlei e futsal. Sanitários, vestiários e área de depósito também fazem parte do programa. Todos os ambientes são acessíveis conforme normas nacionais. As arquibancadas podem abrigar 364 espectadores e apresentam condições adequadas de circulação e visibilidade.
Previu-se a instalação de painéis solares na cobertura para a geração de energia e aquecimento de água para os sanitários e vestiários. Iluminação e ventilação naturais são premissas marcantes no projeto, sendo especificados materiais translúcidos nos fechamentos laterais e membrana na cobertura, além de aberturas para circulação do ar.
Ficha Técnica


Ginásio APAE Valinhos

Local: Valinhos - São Paulo

Data do Projeto: 2012

Área Construída: 1.379,25 m²

Fase do Projeto: Estudo+Básico+Executivo

Equipe: Tetra

Cliente: APAE Valinhos

Ginásio APAE Valinhos