Warning: session_start() [function.session-start]: Cannot send session cookie - headers already sent by (output started at /home/storage/3/9c/34/tetraarq/public_html/projetos_abrir.php:42) in /home/storage/3/9c/34/tetraarq/public_html/menu.php on line 4

Warning: session_start() [function.session-start]: Cannot send session cache limiter - headers already sent (output started at /home/storage/3/9c/34/tetraarq/public_html/projetos_abrir.php:42) in /home/storage/3/9c/34/tetraarq/public_html/menu.php on line 4
Descrição


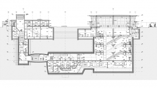
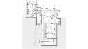
A estação Vila Clementino, que irá compor a expansão da linha 5 do Metrô de São Paulo, está sendo construída no cruzamento entre as ruas Pedro de Toledo e dos Otonis. Foi dimensionada para atender um fluxo superior a 5000 usuários por hora, com previsão inicial para entrar em funcionamento a partir de 2017.
Na superfície contará com um edifício em lâmina, que abriga as salas técnicas e operacionais, e dois acessos situados um em cada lado da Rua Pedro de Toledo. A grande superfície envidraçada destas construções, com destaque para o grande caixilho frontal e as aberturas zenitais do acesso sul, permite a entrada de luminosidade natural até os níveis subterrâneos, contribuindo para o conforto ambiental.
Abaixo da superfície, dois poços ligam-se com o corpo da estação, ligando assim, o Hall de Bilheterias às Plataformas. Além de possibilitarem a circulação dos usuários, os poços abrigam também o sistema de ventilação, indispensável para a renovação do ar. A SISTRAN Engenharia é parceira da Tetra Arquitetura e Consultoria neste projeto.
Ficha Técnica


Estação Vila Clementino

Local: São Paulo, São Paulo

Data do Projeto: 2009

Área Construída: 12.682,37 m²

Fase do Projeto: Preliminar + Básico

Equipe: Tetra + Sistran Engenharia

Cliente: Companhia do Metropolitano de São Paulo

Estação Vila Clementino