Warning: session_start() [function.session-start]: Cannot send session cookie - headers already sent by (output started at /home/storage/3/9c/34/tetraarq/public_html/projetos_abrir.php:42) in /home/storage/3/9c/34/tetraarq/public_html/menu.php on line 4

Warning: session_start() [function.session-start]: Cannot send session cache limiter - headers already sent (output started at /home/storage/3/9c/34/tetraarq/public_html/projetos_abrir.php:42) in /home/storage/3/9c/34/tetraarq/public_html/menu.php on line 4
Descrição


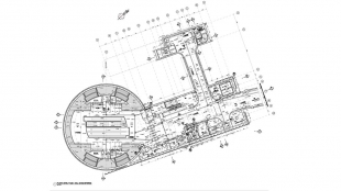
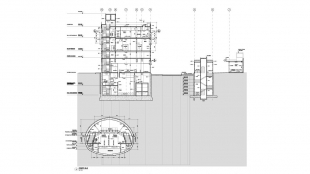
A Estação Butantã da Linha 4 – Amarela, situada na Avenida Vital Brasil, próxima à Cidade Universitária, articula-se com a rede de transporte sobre pneus através de um novo terminal integrado ao projeto do Metrô.
As áreas técnicas e salas operacionais desta estação estão contidas em uma edificação acima da superfície revestida por chapas de aço inox. As cores vivas utilizadas em toda a composição, aliadas a esta fachada metálica, destacam este equipamento urbano do entorno facilitando seu reconhecimento e localização.
Assim como a Estação Luz, este projeto também conta com uma grande abertura zenital que permite a entrada de luz natural até os níveis mais profundos, iluminando inclusive a plataforma de embarque. A Themag Engenharia foi parceira da Tetra Arquitetura e Consultoria neste projeto.
Ficha Técnica


Estação Butantã

Local: São Paulo, São Paulo

Data do Projeto: 2006-2010

Área Construída: 12.987,25 m²

Fase do Projeto: Básico+Executivo

Equipe: Tetra + Themag

Cliente: Consórcio Via Amarela

Estação Butantã