en
|
pt
contato
compliance
publicações
livros
revistas
a empresa
projetos
esportivo
institucional
viário
aeroporto
metrô
vistoria cautelar
residencial
fundações
home
Descrição
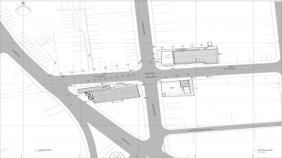
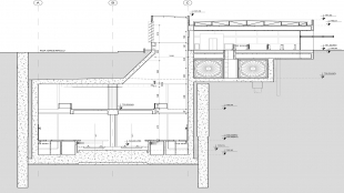
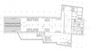
A Estação Sacomã é integrante da expansão da Linha 2-Verde, e sua inauguração ocorreu em 2010. Ela atende a região sudeste da capital, marcada por uma urbanização consolidada e significativa função residencial, que sofre com defasagem de transporte público de qualidade.
A entrada de luz natural através dos shafts situados no lado sul constitui um ambiente diferenciado durante o dia, compondo com a iluminação artificial multicolorida distribuída linearmente ao longo de toda a plataforma.
Ficha Técnica
Estação Sacomã
Local: São Paulo, SP
Data do Projeto: 2008-2010
Área Construída: 11.539,63 m²
Fase do Projeto: Executivo
Equipe: Tetra
Cliente: Companhia do Metropolitano de São Paulo
Estação Sacomã