en
|
pt
contato
compliance
publicações
livros
revistas
a empresa
projetos
esportivo
institucional
viário
aeroporto
metrô
vistoria cautelar
residencial
fundações
home
Descrição
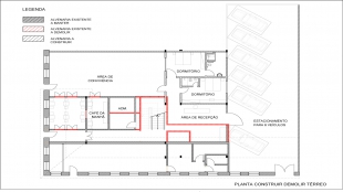
O desafio do projeto foi transformar uma casa deteriorada e com fachadas tombadas pelo Patrimônio Histórico na área central de São Sebastião em uma pousada voltada para o turismo de negócios.
O edifício existente, localizado em uma esquina, é térreo e suas fachadas em estilo colonial não podem sofrer descaracterização, assim como uma faixa do telhado.
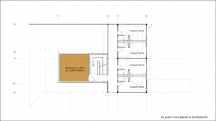
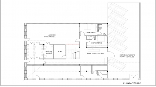
Perpendicularmente à planta retangular da construção existente foi incorporado o trecho complementar, formando um “L”, sendo este com dois níveis para abrigar os quartos. No térreo encontram-se dois quartos, sendo um totalmente adaptado e acessível para pessoas em cadeiras de rodas ou mobilidade reduzida, e quatro no andar superior.
O projeto adequa os antigos ambientes à nova função criando áreas de administração, recepção e convivência (sala para café da manhã). A circulação vertical na intersecção dos volumes em uma caixa de vidro traz iluminação natural para a área da recepção e contrasta com a linguagem colonial do conjunto.
Parte do telhado existente foi suprimido por problemas com o pé direito e deu lugar a uma laje impermeabilizada que se transforma em uma varanda de convivência no andar superior. A lateral livre do terreno abriga um estacionamento para seis automóveis, mesmo número de quartos, conforme pedido do cliente. Na faixa livre restante do terreno foi projetado um jardim que serve de apoio à área do café da manhã e também possibilita a realização de eventos.
Ficha Técnica
Pousada em São Sebastião
Local: São Sebastião, litoral norte de São Paulo
Data do Projeto: 2012-2013
Área Construída: 331,20 m²
Fase do Projeto: Anteprojeto
Equipe: Tetra
Cliente: Luiz Pacini Neves
Pousada em São Sebastião